
Welcome to Aymen InfraTech - Leading Construction & Project Management Experts.
Aymen InfraTech is a trusted construction and project management company based in Thanjavur, offering expert services in residential, commercial, and industrial construction. Our skilled team leverages BIM technology (Building Information Modeling) to ensure the highest levels of precision, innovation, and quality in every project.
Revolutionizing Residential Construction in Thanjavur with BIM Technology
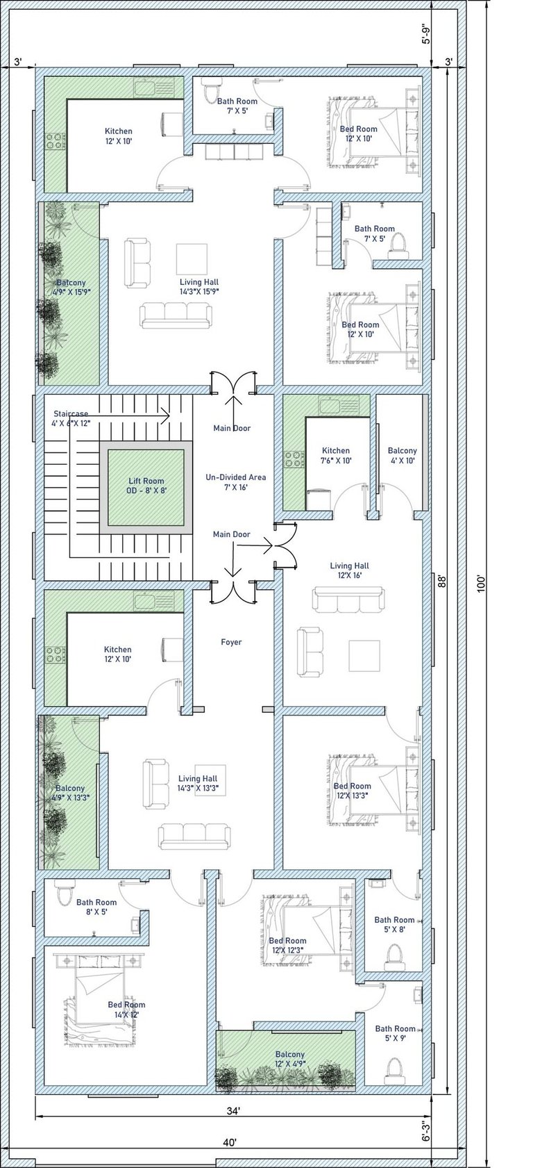
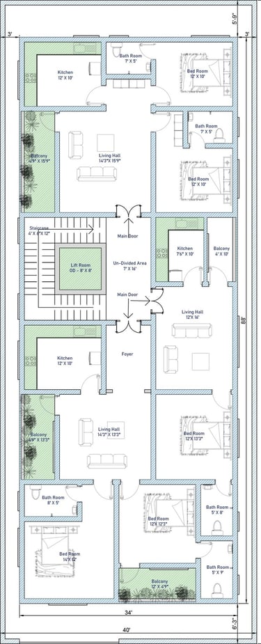
Aymen InfraTech leads the way in residential construction in Thanjavur, delivering precision and innovation through BIM technology. As experts in building residential projects, we ensure efficient planning, cost savings, and quality execution. Our construction services in Thanjavur focus on modern designs, sustainability, and seamless workflows, making us the preferred choice for residential building solutions.




Advancing Residential Construction Standards in Thanjavur with BIM-Driven Structural Analysis




Modern residential construction in Thanjavur is evolving with advanced technologies like BIM modeling for structural analysis. This innovative approach enhances building design accuracy, optimizes resources, and improves overall construction quality. By integrating BIM technology, projects benefit from early error detection, streamlined workflows, and cost-effective solutions. Focused on delivering residential buildings that meet safety and performance standards, this method is transforming construction practices in Thanjavur, setting new benchmarks for precision and efficiency.


Why Aymen InfraTech Stands Out?
At Aymen InfraTech, we combine expertise, innovation, and reliability to set new standards in construction across Thanjavur. With a focus on residential, commercial, and industrial projects, we bring advanced BIM technology into every phase, ensuring precision and efficiency. Our commitment to design excellence, structural quality, and seamless execution reflects in every project we undertake. From concept to completion, we prioritize sustainable practices, cost-effective solutions, and modern building techniques. Whether shaping elegant interiors, durable exteriors, or managing complete construction processes, we deliver results that exceed expectations—making us the trusted name in Thanjavur’s construction industry.
Expertise in Construction - Proven excellence in building projects.
BIM-Driven Approach - Advanced BIM technology for precision.
Residential & Commercial Focus - Tailored designs for all needs.
Skilled Civil Engineers - Professional engineering and planning.
Sustainable Solutions - Eco-friendly and cost-effective builds.
Innovative Designs - Modern interior and exterior concepts.
End-to-End Services - Complete construction management support.
Timely Project Delivery - On-time completion without compromise.
Quality Assurance - High standards in every building process.


Copyright © 2024. Aymen InfraTech, Thanjavur. All rights reserved.
Aymen InfraTech is a trusted construction company in Thanjavur, specializing in residential, commercial, and industrial projects. We deliver innovative designs and sustainable building solutions with advanced BIM technology and expert engineering.
Contact Details






Near Keelavasal Market, Thanjavur, Tamilnadu, 613001
abustructural@gmail.com
+91 91590 90150